On this page:
New to practice notes?
Planning practice notes give technical advice about the planning system, each dealing with separate aspects of the system.
The standards covered are:
- Street setback – Standards A3 and B6
- Building height – Standards A4 and B7
- Site coverage – Standards A5 and B8
- Permeability – Standards A6 and B9
- Building setback – Standard A9 (applies to a small second dwelling)
- Safety and accessibility – Standard A9.1 (applies to a small second dwelling)
- Side and rear setbacks – Standards A10 and B17
- Walls on boundaries – Standards A11 and B18
- Daylight to existing windows – Standards A12 and B19
- North-facing windows – Standards A13 and B20
- Overshadowing open space – Standards A14 and B21
- Overlooking – Standards A15 and B22
- Daylight to new windows – Standards A16 and B27
- Private open space – Standards A17 and B28
- Front fences – Standards A20 and B32.
This practice note is an illustrative guide to the application of these 15 residential development standards.
Meeting the requirements of clauses 54 and 55
This practice note is not a substitute for meeting the requirements of clauses 54 and 55. Some of the standards are able to be locally varied and any applicable local schedules should also be consulted before considering the relevant standard.
Clauses 54 and 55 specify objectives that must be met. The objectives describe the desired outcome to be achieved by a development proposal. A development must meet all objectives of the clause before a permit can be issued.
Each objective contains a relevant standard. A standard contains the requirements to meet the objectives. A standard should normally be met. However, if the responsible authority is satisfied that an application for an alternative design solution meets the objectives, the alternative design solution may be considered.
In clause 54 and 55, if a development meets the following standards it is deemed to meet the objective for that standard:
- Street setback objective
- Building height objective
- Site coverage objective
- Permeability/permeability and stormwater management objective
- Building setback objective (applies to small second dwellings)
- Safety and accessibility objective (applies to small second dwellings)
- Side and rear setbacks objective
- Walls on boundaries objective
- Daylight to existing windows objective
- North-facing windows objective
- Overshadowing open space objective
- Overlooking objective
- Daylight to new windows objective
- Private open space objective
- Front fences objective
Where one of the above standards is met, the decision guidelines for that standard do not apply to the application.
If a zone or an overlay specifies a requirement of a standard, different from a requirement set out in the clause, the requirement of the zone or overlay applies.
For detailed information on the operation of the objectives, standards and decision guidelines, refer to clauses 54 and 55 of the planning scheme.
The following planning practice notes also guides aspects of the residential development provisions:
- Planning Practice Note 16 – Making a Planning Application for One or More Dwellings in a Residential Zone
- Planning Practice Note 15 – Assessing an Application for One or More Dwellings in a Residential Zone.
- Planning Practice Note 43 – Understanding Neighbourhood Character
- Planning Practice Note 84 – Applying the Minimum Garden Area Requirement
A3 and B6 Street setback
The setback of buildings from the street is a key determinant of neighbourhood character. This standard relates the front setback to neighbouring setbacks, so all new buildings respond to the street’s character.
Standard A3 and B6
Walls of buildings should be set back from streets:
- at least the distance specified in the schedule to the zone, or
- if no distance is specified in the schedule to the zone, the distance specified in Table A1/B1.
Porches, pergolas and verandahs that are less than 3.6 metres high, as well as eaves may encroach up to 2.5 metres into the setbacks of this standard.
Table A1 and B1 - Street setback
| Development context | Minimum setback from front street (metres) | Minimum setback from a side street (metres) |
|---|---|---|
| There is an existing building on both the abutting allotments facing the same street, and the site is not on a corner. | The average distance of the setbacks of the front walls of the existing buildings on the abutting allotments facing the front street or 9 metres, whichever is the lesser. | Not applicable |
| There is an existing building on one abutting allotment facing the same street and no existing building on the other abutting allotment facing the same street and the site is not on a corner. | The same distance as the setback of the front wall of the existing building on the abutting allotment facing the front street or 9 metres, whichever is the lesser. | Not applicable |
| There is no existing building on either of the abutting allotments facing the same street and the site is not on a corner. | 6 metres for streets in a Transport Zone 2 and 4 metres for other streets. | Not applicable |
| The site is on a corner. | If there is a building on the abutting allotment facing the front street, the same distance as the setback of the front wall of the existing building on the abutting allotment facing the front street or 9 metres, whichever is the lesser. If there is no building on the abutting allotment facing the front street, 6 metres for streets in a Transport Zone 2 and 4 metres for other streets. | The same distance as the setback of the front wall of any existing building on the abutting allotment facing the side street or 2* metres, whichever is the lesser. |
* The minimum setback from a side street is 2 metres for one dwelling on a lot or small second dwelling (clause 54) and 3 metres for two or more dwellings on a lot (clause 55).
Applying the standard
Average front setback
The average front setback for a new dwelling or small second dwelling is established by taking the front setbacks of the two existing dwellings (Setbacks A and B) on the abutting lots and dividing by two.
Applying the standard to a dwelling.

Applying the standard to a small second dwelling (SSD).

Front setback where there is only one existing abutting dwelling
A new dwelling or small second dwelling takes its reference for front setback from the abutting dwelling. In this instance the existing dwelling setback is greater than 9 metres. Therefore, the new dwelling or small second dwelling is able to be setback equal to or greater than 9 metres.
The front porch is an allowable encroachment for a new dwelling.
If the abutting dwelling setback is less than 9 metres, the new dwelling or small second dwelling should have a minimum setback of the same distance as the abutting dwelling.
Applying the standard to a dwelling.

Applying the standard to a small second dwelling (SSD).

Front setback on a corner lot
Either street frontage may be selected as the front setback on a corner lot. A small second dwelling will have the same frontage as the existing dwelling.
The new dwelling or small second dwelling should be set back the same distance as the front setback of the abutting dwelling facing the same street or 9 metres, whichever is the lesser.
Where there is a proposal to develop two or more dwellings on a lot, there is only one front street setback for the purposes of this standard.
Applying the standard to a dwelling.

Same front setback as adjoining dwelling.
Applying the standard to a small second dwelling (SSD).

Side setback on a corner lot
Once the front setback has been chosen, the other street frontage is treated as a side setback. If the abutting dwelling has a setback equal or greater than 2 metres, the new dwelling or small second dwelling is able to be setback from that boundary 2 metres for one dwelling on a lot or a small second dwelling or 3 metres for two or more dwellings on a lot.
If the abutting dwelling setback is less than 2 metres or 3 metres, respectively, the new dwelling(s) or small second dwelling should have a minimum setback of the same distance as the abutting dwelling.
Applying the standard to a dwelling.

Applying the standard to a small second dwelling (SSD).

A4 and B7 Building height
Building height is an important aspect of both character and amenity in residential areas. The standard protects the amenity of properties near new development and ensures that excessive building height does not diminish the character of neighbourhoods.
Standard A4 and B7
The maximum building height should not exceed the maximum height specified in the zone, schedule to the zone or an overlay that applies to the land.
If no maximum height is specified in the zone, schedule to the zone or an overlay, the maximum building height should not exceed 9 metres, unless the slope of the natural ground level at any cross section wider than 8 metres of the site of the building is 2.5 degrees or more, in which case the maximum building height should not exceed 10 metres.
Applying the standard
Maximum building height on sloping land
The slope of land is measured through any cross section (greater than 8 metres) of the building.
If the slope of the land is greater than 2.5 degrees through the cross section, the maximum building height may be up to 10 metres.
The maximum height of 10 metres is measured from any point of the dwelling to natural ground level.


Working out the slope of a building site
Where the slope of the ground is 2.5° or more across an 8 metre cross section of the building site, this is equal to:
- a ratio of 1:23 or
- 350 mm (when expressed as a rise or fall over an 8 metre cross section).
A5 and B8 Site coverage
The standard limits the proportion of any lot that can be built on, to provide outdoor space for residents and to protect the amenity and character of neighbourhoods.
Standard A5 and B8
The site area covered by buildings should not exceed:
- the maximum site coverage specified in the schedule to the zone, or
- if no maximum site coverage is specified in the schedule to the zone, 60 per cent.
Applying the standard

- Left: Applying to a single dwelling
- Centre: Applying to two dwellings on a lot
- Right: Applying to a small second dwelling
A: Dwelling
B: Verandah
C: Garage
D: Garden shed
E: Small second dwelling
Site coverage (%) = Total building area multiplied by 100 divided by Total site area.
The definition of a building includes a dwelling, a small second dwelling, a garage or carport, a verandah and any other roofed building such as a garden shed. When calculating site coverage, if the upper storey projects over the ground floor, that part of the upper storey is also added onto the ground floor area. This does not include an underground basement that is constructed wholly underground.
Outdoor paving, driveways, pathway or building eaves are not included when calculating the amount of site coverage.
In the above examples, when calculating site coverage for a:
- single dwelling proposal, the total building area includes the dwelling, verandah, garage and garden shed
- two dwelling proposal, the total building area includes both dwellings, both garages and the garden shed for the second dwelling. Where there are two or more dwellings on a lot, the total site area for all the dwellings is included when calculating site coverage
- small second dwelling proposal, the total building area includes the small second dwelling, existing dwelling, verandah, garage and garden shed.
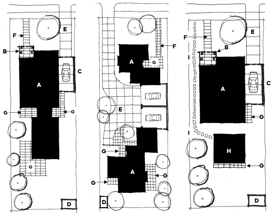
A6 and B9 Permeability
Limiting hard surfaces reduces the volume of stormwater run-off, which reduces pressure on urban drainage systems and helps protect water quality in downstream waterways. This standard limits the amount of hard surfaces that can surround a new development.
Standard A6 and B9
At least 20 per cent of the site should not be covered by impervious surfaces.
Applying the standard

- Left: Applying to a single dwelling
- Centre: Applying to two dwellings on a lot
- Right: Applying to a small second dwelling
A: Dwelling
B: Verandah
C: Garage
D: Garden shed
E: Driveway (concrete)
F: Footpath (concrete)
G: Outdoor paving (sealed)
H: Small second dwelling
I: Access path (sealed)
Permeability (%) = Total pervious area multiplied by 100 divided by Total site area.
Water cannot penetrate an impervious surface. An impervious surface includes a dwelling, a small second dwelling, a garage or carport, a verandah, a garden shed, a path, a swimming pool, outdoor paved areas, a driveway or any other sealed surface.
At least 20 per cent of the site should have surfaces that can absorb water – such as garden beds, lawn and other unsealed surfaces. This can include driveways, pathways and outdoor entertaining areas, provided the materials used for their construction are pervious.
A9 Building setback (applies to a small second dwelling)
This standard ensures that a small second dwelling is sited behind the front wall of the existing dwelling on the lot to respect the existing or preferred neighbourhood character.
Standard A9 (applies to a small second dwelling)
The building setback for a small second dwelling is established by taking the front wall of the existing dwelling on the lot, facing the frontage and setting back the small second dwelling behind this wall.
Porches, pergolas, verandahs and eaves should not be closer to the frontage than the front wall of the existing dwelling on the lot.
For a small second dwelling on a corner lot, a small second dwelling is only required to be set back behind the front wall of the existing dwelling on the same lot, facing the frontage. The standard does not require a small second dwelling to be set back behind the side wall of the existing dwelling on the same lot facing the side street. In this case, standard A3 applies to a small second dwelling, and standard A9 does not apply.

The front porch of the small second dwelling (SSD) is not closer to the frontage than the front wall of the existing dwelling on the lot.

A: Side setback
B: Front setback
SSD: Small second dwelling
A9.1 Safety and accessibility (applies to a small second dwelling)
This standard ensures that access to a small second dwelling is safe, convenient and meets the needs of residents.
Standard A9.1 (applies to a small second dwelling)
A small second dwelling should be provided with a clear and unobstructed path from the frontage that:
- Has a minimum width of at least 1 metre, with no encroachment. If the path is longer than 30 metres, the path should have a minimum width of at least 1.8 metres.
- Has a minimum clear height of at least 2 metres, with no encroachments.
- Has a gradient no steeper than 1 in 14.
- Has a cross fall no steeper than 1 in 40.
- Is sealed or has an all-weather access.
If the path is proposed to be from a side street, laneway or other roadway, the decision guidelines should be used to determine if the access arrangements are appropriate.

A path to a small second dwelling (SSD) that is less than 30m should have a minimum width of at least 1 metre.

A path to a small second dwelling (SSD) that is longer than 30m should have a minimum width of at least 1.8 metres.
A10 and B17 Side and rear setbacks
This standard ensures adequate separation between dwellings and small second dwellings on adjacent lots, particularly above ground floor level.
Standard A10 and B17
A new building not on or within 200 mm of a boundary should be set back from side or rear boundaries:
- at least the distance specified in the schedule to the zone, or
- if no distance is specified in the schedule to the zone, 1 metre, plus 0.3 metres for every metre of height over 3.6 metres up to 6.9 metres, plus 1 metre for every metre of height over 6.9 metres.
Sunblinds, verandahs, porches, eaves, fascias, gutters, masonry chimneys, flues, pipes, domestic fuel or water tanks, and heating or cooling equipment or other services may encroach not more than 0.5 metres into the setbacks of this standard.
Landings having an area of not more than 2 square metres and less than 1 metre high, stairways, ramps, pergolas, shade sails and carports may encroach into the setbacks of this standard.

Side and rear setbacks
Where the wall height is between 3.6 metres and 6.9 metres, the formula for calculating side and rear setbacks is:
1 m + [0.3 m x (h – 3.6 m)]
(h = wall height)
Where the wall height is greater than 6.9 metres, the formula is:
1 m + [0.3 m x (6.9 m – 3.6 m)] + [1 m x (h – 6.9 m)]
(h = wall height)
Using the above example, if the wall height is 6.9 metres, the required setback is calculated as follows:
1 m + [0.3 x (6.9 m – 3.6 m)]
= 1 m + [0.3 x 3.3 m]
= 1 m + 0.99 m
= 1.99 m (rounded up to 2 m) setback
Side and rear setbacks

Allowable encroachments
The chimney and eaves are allowable encroachments provided they do not encroach more than 500mm into the setbacks of this standard.

A11 and B18 Walls on boundaries
This standard limits the height and length of walls on lot boundaries, to reduce the amenity impact of housing on neighbouring properties. The length and height of walls on lot boundaries also impacts neighbourhood character.
Standard A11 and B18
A new wall constructed on or within 200 mm of a side or rear boundary of a lot or a carport constructed on or within 1 metre of a side or rear boundary of a lot should not abut the boundary for a length of more than:
- 10 metres plus 25 per cent of the remaining length of the boundary of an adjoining lot, or
- where there are existing or simultaneously constructed walls or carports abutting the boundary on an abutting lot, the length of the existing or simultaneously constructed walls or carports,
whichever is the greater.
A new wall or carport may fully abut a side or rear boundary where the slope and retaining walls or fences would result in the effective height of the wall or carport being less than 2 metres on the abutting property boundary.
A building on a boundary includes a building set back up to 200 mm from a boundary. The height of a new wall constructed on or within 200 mm of a side or rear boundary or a carport constructed on or within 1 metre of a side or rear boundary should not exceed an average of 3.2 metres with no part higher than 3.6 metres unless abutting a higher existing or simultaneously constructed wall.
Applying the standard
When applying this standard ’new wall’ means the total length of any existing and proposed wall when calculating the length of a wall on a boundary.
Walls on boundaries where there is one adjoining lot
The formula for calculating walls on boundaries is:
10 m + [(length of boundary of an adjoining lot – 10 m) x 0.25]
This formula is separately applied to each boundary of the lot to determine the permissible walls on each boundary of the lot.
On a lot of 44 metres in length, the walls on boundaries along this boundary is calculated as follows:
10 m + [(44 m – 10 m) x 0.25]
10 m + [34 m x 0.25]
10 m + 8.5 m
18.5 m permissible wall on boundary
This dwelling complies as it has less walls on boundaries than permissible under the standard. Other considerations such as neighbourhood character may be the reason for not using the maximum allowable walls on boundaries.

Walls on boundaries where there is more than one adjoining lot
Where there is more than one adjoining lot along a boundary, walls on the boundary may be constructed up to 10 metres plus 25 per cent of the remainder of the adjoining boundary abutting the lot, for each adjoining boundary.
The walls on boundaries permitted along the boundary are:
- 16.5 metres along the adjacent lot boundary A
- 8 metres along the adjacent lot boundary B.
As can be seen in this example, while the length of the boundary of the lot is the same as in the previous example (44 metres), a longer wall along this boundary is possible because of the abuttal to two properties.
The standard is applied to each adjacent lot boundary individually.

Walls on boundaries where there is an existing or simultaneously constructed wall on the boundary
Where there is an existing wall on the adjoining boundary, the length of the permissible wall on the boundary is able to exceed 10 metres plus 25 per cent of the remainder of the boundary provided that it is the same or a lesser length of the existing wall on the boundary.
To meet the standard, no part of the new wall on the boundary can be built to extend beyond the extent of the existing wall on the boundary, even though the new wall may be the same length as the existing wall on the boundary.
To meet the standard, simultaneously constructed walls on the boundary must be the same length and cannot be staggered.

Walls on boundaries where there is a small second dwelling.
Where there is a small second dwelling (SSD) on a lot, the same walls on boundaries calculations are applied and the small second dwelling is included in the total walls on boundary calculation.

Effective wall height
Effective wall height means the height of the wall from the top of the wall to the ground measured on the boundary from the adjoining property.
In this example, cutting and filling of the cross slope has resulted in an effective wall height of less than 2 metres on the boundary for the wall constructed on the boundary.
Where the effective wall height is less than 2 metres on the boundary, the building may abut the full length of the boundary.
Height of wall on boundary
When calculating the average height of a wall on a boundary the formula is:
Average height = Area of wall divided by Length of wall
It is important to include all aspects of the wall on the boundary in the calculation, including the wall above and below the internal floor and ceiling heights of the wall.

A12 and B19 Daylight to existing windows
This standard ensures that all new dwellings and small second dwellings provide adequate daylight to existing windows.
Standard A12 and B19
Buildings opposite an existing habitable room window should provide for a light court to the existing window that has a minimum area of 3 square metres and minimum dimension of 1 metre clear to the sky. The calculation of the area may include land on the abutting lot.
Walls or carports more than 3 metres in height opposite an existing habitable room window should be set back from the window at least 50 per cent of the height of the new wall if the wall is within a 55 degree arc from the centre of the existing window. The arc may be swung to within 35 degrees of the plane of the wall containing the existing window.
Where the existing window is above ground floor level, the wall height is measured from the floor level of the room containing the window.
Daylight to existing windows

Applying the standard
Building opposite an existing habitable room window

55 degree arc from centre of an existing window

35 degree arc from plane of an existing window

A13 and B20 North-facing windows
This standard protects the energy efficiency of existing dwellings or small second dwellings which use north-facing windows for passive solar heating.
Standard A13 and B20
If a north-facing habitable room window of an existing dwelling or small second dwelling is within 3 metres of a boundary on an abutting lot, a building should be setback from the boundary 1 metre, plus 0.6 metre for every metre of height over 3.6 metres up to 6.9 metres, plus 1 metre for every metre of height over 6.9 metres, for a distance of 3 metres from the edge of each side of the window. A north-facing window is a window with an axis perpendicular to its surface oriented north 20 degrees west to north 30 degrees east.
North-facing window setbacks

Applying the standard
A14 and B21 Overshadowing of open space
This standard protects existing private open space from overshadowing from new developments.
Standard A14 and B21
Where sunlight to the secluded private open space of an existing dwelling or small second dwelling is reduced, at least 75 per cent, or 40 square metres with minimum dimension of 3 metres, whichever is the lesser area, of the secluded private open space should receive a minimum of five hours of sunlight between 9 am and 3 pm on 22 September.
If existing sunlight to the secluded private open space of an existing dwelling or small second dwelling is less than the requirements of this standard, the amount of sunlight should not be further reduced.
Applying the standard
Overshadowing at 9am

Overshadowing at 3pm

Existing overshadowing greater than allowed by the standard
In a typical inner city scenario many private open spaces have existing overshadowing greater than allowed by the requirements of this standard.
In these instances the amount of sunlight should not be further reduced.
This example shows how Dwelling A can be extended without further reducing the amount of sunlight to the private open space of Dwelling B by designing for the shadow of the proposed extension to fall within the shadow of the existing fence.

Length of shadow on 22 September
| Time | Sun altitude (degrees) | Shadow length of a 1 metre high post (m) |
|---|---|---|
| 9.00 am | 32° | 1.60 |
| 10.00 am | 41° | 1.15 |
| 11.00 am | 49° | 0.87 |
| 12.00 noon | 52° | 0.78 |
| 1.00 pm | 50° | 0.84 |
| 2.00 pm | 45° | 1.00 |
| 3.00 pm | 36° | 1.38 |
As a simple guide, the table above gives an indication of shadow lengths at various times of the day based on the height of a 1 metre post and assuming flat ground.
To roughly calculate the length of shadow cast by a 4.5 metre high wall at 9:00 am, you simply multiply 4.5 metres x 1.6 metres = 7.2 metres (shadow length).
Sunlight to private open space
There are a range of commercial packages available to assist in measuring and producing overshadowing diagrams.
Angle of shadow 22 September
A15 and B22 Overlooking
This standard protects existing windows and private open space from overlooking.
Standard A15 and B22
A habitable room window, balcony, terrace, deck or patio should be located and designed to avoid direct views into the secluded private open space and habitable room windows of an existing dwelling or small second dwelling within a horizontal distance of 9 metres (measured at ground level) of the window, balcony, terrace, deck or patio. Views should be measured within a 45 degree angle from the plane of the window or perimeter of the balcony, terrace, deck or patio, and from a height of 1.7 metres above floor level.
A habitable room window, balcony, terrace, deck or patio with a direct view into a habitable room window of an existing dwelling or small second dwelling within a horizontal distance of 9 metres (measured at ground level) of the window, balcony, terrace, deck or patio should be either:
- offset a minimum of 1.5 metres from the edge of one window to the edge of the other
- have sill heights of at least 1.7 metres above floor level
- have fixed, obscure glazing in any part of the window below 1.7 metres above floor level
- have permanently fixed external screens to at least 1.7 metres above floor level and be no more than 25 per cent transparent.
Obscure glazing in any part of the window below 1.7 metres above floor level may be openable provided that there are no direct views as specified in this standard.
Screens used to obscure a view should be:
- perforated panels or trellis with a maximum of 25 per cent openings or solid translucent panels
- permanent, fixed and durable
- designed and coloured to blend in with the development.
This standard does not apply to a new habitable room window, balcony, terrace, deck or patio which faces a property boundary where there is a visual barrier at least 1.8 metres high and the floor level of the habitable room, balcony, terrace, deck or patio is less than 0.8 metres above ground level at the boundary.
Overlooking open space

Applying the standard
Overlooking into secluded private open space

Offsetting a new window
A new habitable room window should be offset 1.5 metres from the edge of an existing window.

A16 and B27 Daylight to new windows
This standard is a fundamental amenity standard that ensures that all new windows of habitable rooms receive adequate daylight.
Standard A16 and B27
A window in a habitable room should be located to face either:
- an outdoor space clear to the sky or a light court with a minimum area of 3 square metres and minimum dimension of 1 metre clear to the sky, not including land on an abutting lot
- a verandah provided it is open for at least one third of its perimeter
- a carport provided it has two or more open sides and is open for at least one third of its perimeter.
Applying the standard
Window facing open space clear to the sky

Window facing a verandah

Window facing a carport

A17 and B28 Private open space
This standard ensures that all residents of new dwellings and small second dwellings have usable and secluded private open space accessible from living areas. It also contributes to the character of residential areas.
Standard A17
A dwelling should have private open space of an area and dimensions specified in the schedule to the zone.
If no area or dimensions is specified in the schedule to the zone, a dwelling should have private open space consisting of an area of 80 square metres or 20 per cent of the area of the lot, whichever is the lesser, but not less than 40 square metres. At least one part of the private open space should consist of secluded private open space with a minimum area of 25 square metres and a minimum dimension of 3 metres at the side or rear of the dwelling with convenient access from a living room.
A dwelling with a small second dwelling on the same lot should have private open space of an area and dimensions specified in a schedule to the zone.
If no area or dimensions is specified in a schedule to the zone, a dwelling with a small second dwelling on the same lot should have secluded private open space consisting of an area of 25 square metres and a minimum dimension of 3 metres at the side or rear of the dwelling with convenient access from a living room.
A small second dwelling should always have a secluded private open space consisting of an area of 8 square metres with a minimum dimension of 1.6 metres with convenient access from a living room. This is in addition to the private open space requirement for the existing dwelling on the same lot.
Standard B28
A dwelling or residential building should have private open space of an area and dimensions specified in the schedule to the zone.
If no area or dimensions are specified in the schedule to the zone, a dwelling or residential building should have private open space consisting of either:
- an area of 40 square metres, with one part of the private open space to consist of secluded private open space at the side or rear of the dwelling or residential building with a minimum area of 25 square metres, a minimum dimension of 3 metres and convenient access from a living room
- a balcony of 8 square metres with a minimum width of 1.6 metres and convenient access from a living room
- a roof-top area of 10 square metres with a minimum width of 2 metres and convenient access from a living room.
Applying the standard

The total private open space area should not be less than 40 square metres for a dwelling where there are two or more dwellings on a lot and 80 square metres or 20 per cent of the area of the lot, whichever is the lesser, for one dwelling on a lot.
Secluded private open space with a minimum area of 25 square metres and a minimum dimension of 3 metres should be provided for both one or two or more dwellings on a lot.
The 25 square metres of secluded private open space should be provided as part of the total private open space for the dwelling, not in addition to it.
A dwelling with a small second dwelling on the same lot should have a secluded private open space consisting of an area not less than 25 square metres and a minimum dimension of 3 metres.
A small second dwelling should have a secluded private open space consisting of an area of 8 square metres with a minimum dimension of 1.6 metres.
A20 and B32 Front fences
This standard provides for front fences to be lower than other fences, so that houses and vegetation can be seen from the street and contribute to the streetscape.
Standard A20 and B32
The design of front fences should complement the design of the dwelling and any front fences on adjoining properties.
A front fence within 3 metres of a street should not exceed:
- the maximum height specified in the schedule to the zone
- if no maximum height is specified in the schedule to the zone, the maximum height specified in Table A2 to clause 54 or Table B3 to clause 55:
Table A2 and B3 - Maximum front fence height
| Street context | Maximum front fence height |
|---|---|
| Streets in a Transport Zone 2 | 2 metres |
| Other streets | 1.5 metres |
Applying the standard

Disclaimer
This publication may be of assistance to you but the State of Victoria and its employees do not guarantee that the publication is without flaw of any kind or is wholly appropriate for your particular purposes and therefore disclaims all liability for any error, loss or other consequence which may arise from you relying on any information in this publication.
Page last updated: 01/05/24

